Bauleitplanung
Die Bauleitplanung steuert die städtebauliche Entwicklung von Städten und Gemeinden. Sie legt fest, wie Flächen künftig genutzt werden können, und schafft somit eine verlässliche Grundlage für Bauvorhaben, Infrastruktur und Umweltschutz. Form, Aufstellungsverfahren und Inhalt werden durch das Baugesetzbuch (BauGB) und die Baunutzungsverordnung (BauNVO) bestimmt. Die Aufstellung der Bauleitpläne (Bebauungspläne und Flächennutzungspläne) obliegt den Städten und Gemeinden.
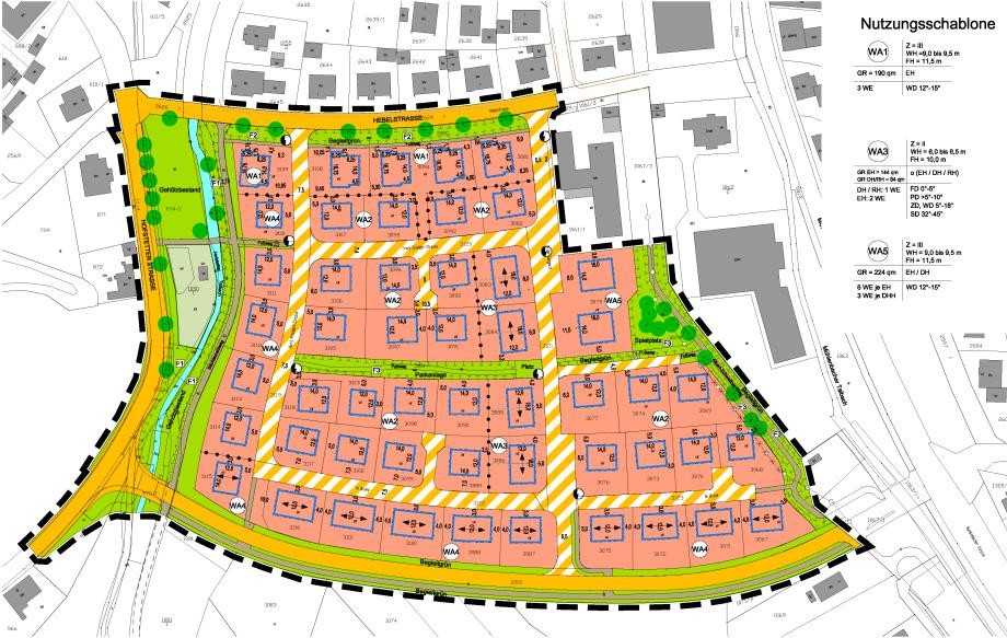
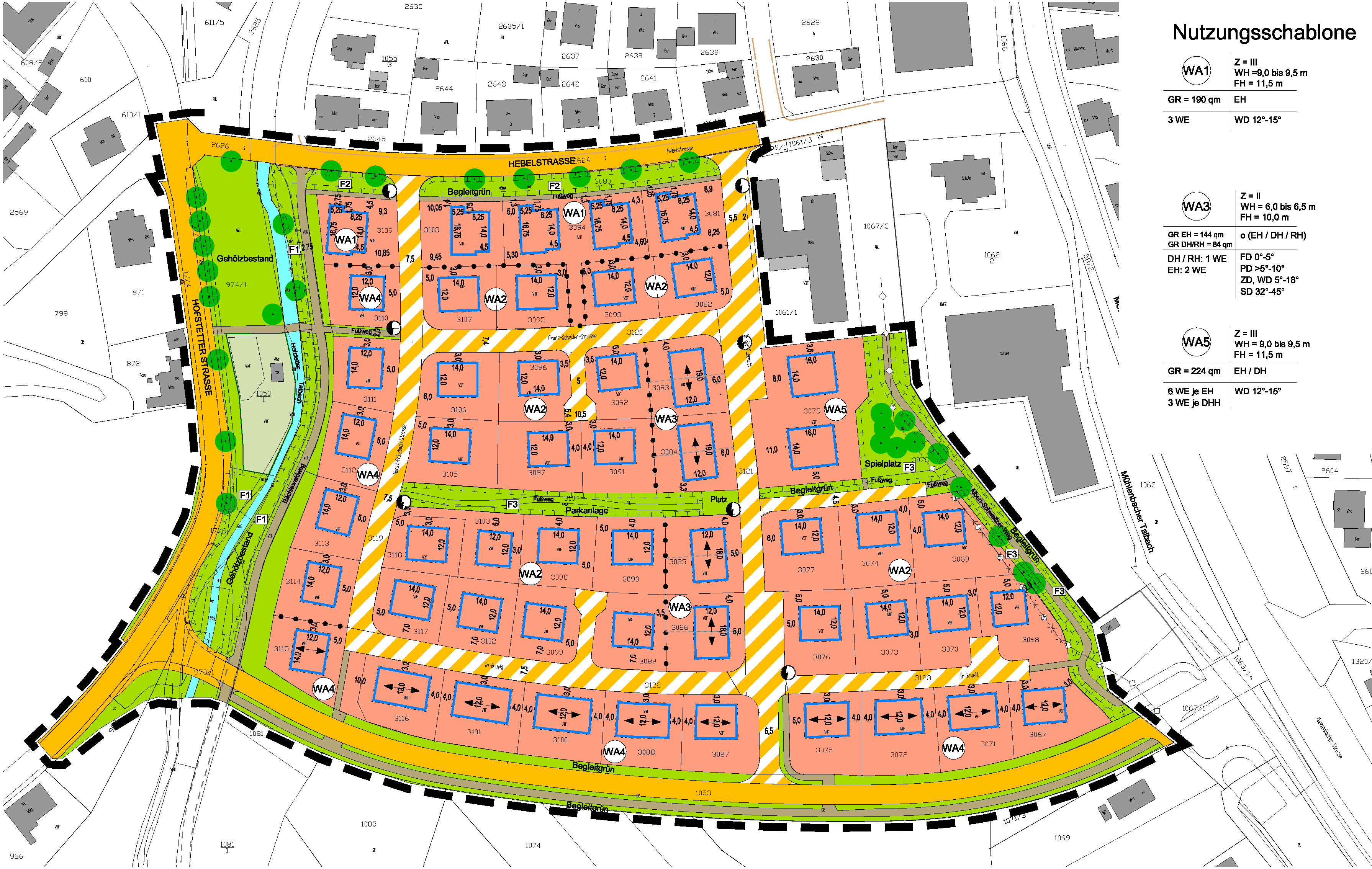
Bebauungspläne, städtebauliche Satzungen und Flächennutzungsplan
Auf den nachfolgenden Seiten erhalten Sie nähere Informationen zu den sich derzeit in Aufstellung befindlichen und rechtskräftigen Bebauungsplänen und städtebaulichen Satzungen der Stadt Haslach sowie zum Flächennutzungsplan der vereinbarten Verwaltungsgemeinschaft Haslach.
Mit Bauleitplänen gestaltet die Stadt Haslach ihre Zukunft aktiv – nachvollziehbar, rechtssicher und transparent im Dialog mit der Öffentlichkeit.


